Five Bedroom Detached House
£950,000
Detached House with Land and planning, Staple, Canterbury
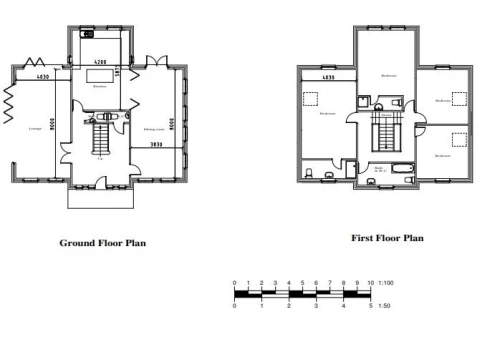
The Rookery is an extremely rare opportunity to purchase a substantial detached five bedroom farmhouse, complete with a plot of land to the left-hand...
5 BED | 2 BATHROOMS | 2 RECEPTIONS
Key Features
Full Property Description
The Rookery is an extremely rare opportunity to purchase a substantial detached five bedroom farmhouse, complete with a plot of land to the left-hand side with full planning permission granted for the erection of a new four-bedroom detached home, plus an additional 9.3 acres of agricultural land to the rear.
Set along a quiet country lane and surrounded by beautiful open countryside and farmland, this unique offering provides exceptional potential for multi-generational living, those looking to build their own home, investment, or those seeking a rural lifestyle with extensive grounds.
The Rookery is a charming and characterful farmhouse offering spacious and versatile accommodation, with ample scope to modernise and create a home tailored to individual tastes while retaining its rustic appeal. With far-reaching countryside views and generous internal spaces, the property has all the potential to become a truly stunning family home.
The inclusion of the adjoining plot - with full planning permission already granted for a new-build four-bedroom detached home adds significant value and opportunity. Whether developed for family use or future investment, this is a noteworthy asset rarely found alongside an established farmhouse.
The property also includes 9.3 acres of agricultural land to the rear, which forms part of the same title and lies directly behind the farmhouse.
You will have to pay £XXX in stamp duty.
Please note the above figure will be different if you are purchasing this as an additional property.
Detached House with Land and planning, Staple, Canterbury
Please enter your details below and one of our team will get back to you as soon as possible