Key Features
- A beautifully renovated detached period property
- Five large bedrooms
- Two luxury bathrooms
- Secretly tucked away in the City Centre, Beautiful landscaped gardens
- Council Tax Band G, EPC Band D, Deposit £5,190.00
- Private parking for three cars
- Two elegant reception rooms
- A ten minute walk from Canterbury West train station
- Available immediately
Full Property Description
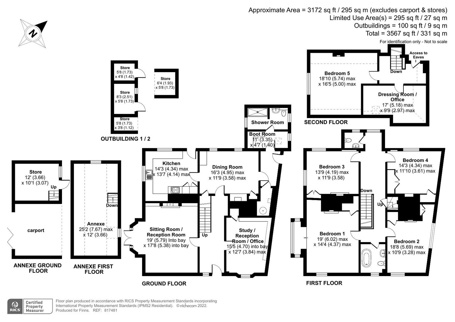
One of Canterbury’s best kept secrets. This 16th Century Grade II listed home in the centre of Canterbury has been refurbished to an extremely high standard throughout whilst maintaining its original features. Situated on St Peter’s Street within easy walking distance to Canterbury East and West railway stations, the Marlowe Theatre, Canterbury Cathedral and many of Canterbury’s highly acclaimed Schools and Universities. A beautifully presented five bedroom detached period house providing spacious well appointed accommodation over three floors. The property comprises on the ground floor; grand entrance hall, two reception rooms, one of which opens through French Doors onto the garden, kitchen, dining room, boot room, shower room and rear entrance. On the first floor there are four bedrooms, a family bathroom and separate WC. The second floor comprises of a fifth bedroom plus dressing room/office. The property benefits from gas fired central heating, has several outbuildings for storage of bikes etc and off-street parking for a minimum of three vehicles. The large, landscaped garden can be maintained by the landlord’s gardeners which would be payable over and above the monthly rent.